::Strutture > Oratorio > Progetto tecnico
Oratorio (Storia) Riduci
 Stampa   
Prospetti Riduci
L'Auditorium

La sala ha una dimensione paragonabile alla navata della chiesa.
E' costituita da una platea e da una gradinata al piano superiore.
La capienza è di quasi 300 posti a sedere.

 maggiori informazioni ...
L'Auditorium
Piazzetta

un viale alberato collegherà la chiesa all’oratorio e Il porticato completerà l’arredo urbano divenendo elemento di fusione tra oratorio e campo da calcetto.
Lo spazio viene completamente ridefinito, diventando luogo di incontro pubblico, all’aperto: una nuova PIAZZA

 maggiori informazioni ...
Piazzetta
Retro

Visione della parte posteriore dell'edificio

 maggiori informazioni ...
Retro
 Stampa   
Progetto tecnico Riduci

L'edificio è stato progettato partendo dal presupposto di conservare l'attuale portale d’ingresso in modo da mantenere il legame col passato, restando fedeli al “voto” dei nostri predecessori.
Verrà costruito con materiali tradizionali in sintonia con gli edifici storici del contesto
utilizzando per le parti piene il mattone a vista, abbinato alle trasparenze delle vetrate.

E' stato progettato in modo da poter eliminare le colonne portanti internamene consentendo così la massima libertà alla divisione degli spazi.

 Stampa   
Il portale d'ingresso Riduci
portale
 Stampa   
Energie rinnovabili Riduci

Il riscaldamento sarà realizzato al 60% da una pompa di calore alimentata da sonde geotermiche.
sonde geotermiche
coimbentazione
E' stato particolarmente curato l'aspetto di isolamento termico dell'edificio, sia per evitare le dispersioni invernali che per garantire il comfort nel periodo estivo.
L’edificio così realizzato avrà fabbisogni energetici minimi.

 


Ci saranno Pannelli fotovoltaici che copriranno il fabbisogno energetico elettrico sia dell'oratorio che di chiesa, canonica ed 'asilo.


Sarà un ambiente ideale sia sotto il profilo della salubrità che del comfort
con bassi costi di gestione e basse emissioni di CO2.

 Stampa   
Progetto Riduci
Planimetria generale

Posizione dell'oratorio rispetto a chiesa, asilo e campo da calcio

 maggiori informazioni ...
Planimetria generale
Piano terra

un ampio atrio aperto, 3 aule, 1 ampia sala

 maggiori informazioni ...
Piano terra
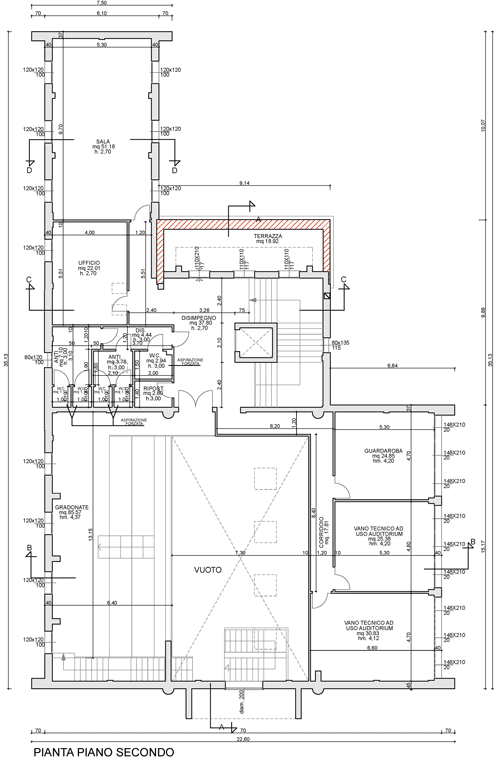
Secondo piano

la gradinata dell'audorium e altre 5 aule

 maggiori informazioni ...
Secondo piano
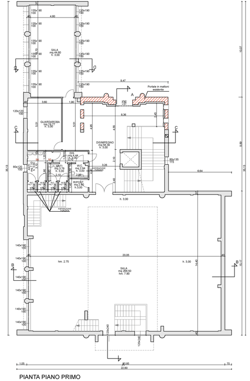
Primo piano

un' aula, uno spazio trasformabile per riunioni assembleari, gruppi famiglie, genitori ed associazioni, l'auditorium

 maggiori informazioni ...
Primo piano
 Stampa   
Registrazione Login
Copyright (c) 2010-2012, Parrocchia di Preganziol   |  Dichiarazione per la Privacy  |  Condizioni d'Uso